Ruysdaelstraat 64-4
1071 XG AMSTERDAM
€ 725.000,- k.k.
Omschrijving
UNIEK EN MODERN TWEEKAMERAPPARTEMENT GELEGEN OP DE 4E VERDIEPING (71 M2) MET BALKON, DAKTERRAS (29 M2) EN PANORAMA VIEW OVER AMSTERDAM*English below*
Omgeving:
Dit sfeervolle appartement ligt in het gewilde Oud-Zuid. In deze straat is o.a. het restaurant La Garage van oud eigenaar Joop Braakhekke gevestigd. Ga je graag in de avond naar een goed café? Dan kun je terecht bij het welbekende café Wildschut. De Albert Cuyp en P.C. Hooftstraat zijn eveneens op steenworp afstand. Daarnaast pak je gemakkelijk de tram; de halte is op de hoek van de straat gelegen. Dit zonnige 2 kamer appartement is voorzien een riante woonkamer en open keuken, en een stijlvolle houten visgraat vloer. Deze woning beschikt over een balkon (7 m2) en een groot dakterras (29 m2) welke uitzicht biedt over het Museumplein en de Zuidas. Kortom heerlijk wonen begint hier!
Begane grond:
Centrale entree met brievenbus en bel-installatie, trappenhuis.
Vierde etage:
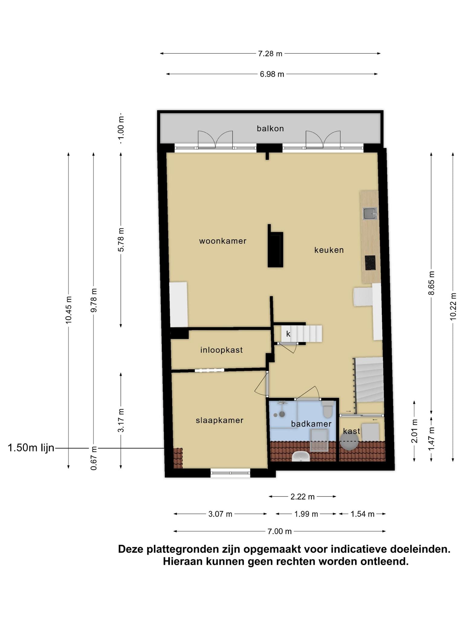
Via de entree, kapstok, meterkast en cv-installatie, loop je de trap omhoog en stap je direct in dit ruime en karakteristieke appartement. Door de historische details, zoals de houten balken, het hoge plafond met inbouwspots en de sierlijke deuren, voel je je onmiddellijk thuis. Aan de achterzijde van de trap is een kast met de warmteboiler. Hier is tevens een aansluiting voor een wasmachine en extra opbergruimte. Vanuit de overloop betreed je de moderne keuken. Deze heeft een natuurlijke lichtinval door de grote ramen aan de achterzijde van de woning. De keuken is voorzien van een met metaal afgewerkte aanrechtblad, bovenkastjes met ingebouwde spotverlichting, vierpits kookplaat, design afzuigkap, vaatwasser, separaat koelkast van Bosh en een gezellig bar. Hier kun je zowel efficiënt werken, als genieten van gezellige late avonden! Links van de keuken zijn twee open doorgangen naar de fijne woonkamer. Hier is ruimte voor een grote hoekbank, loungestoelen en zelfs een aparte eethoek. De openslaande deuren geven de woonkamer een prachtige lichtinval. Ze zijn tevens de toegang tot het balkon van 7 m2 dat over de volledige achterzijde van het appartement is gestationeerd.
De badkamer is naast de trap aan de voorzijde van het appartement gelegen. Deze is voorzien van een inloopdouche, inbouw toilet, zwevend badkamermeubel met mengkraan en moderne zwarte tegelvloer. Naast de badkamer is de ingang van de master bedroom met airco systeem en uitzicht op de Ruysdaelstraat. Hier is ruimte voor een groot tweepersoonsbed en met als kers op de taart een inloopkast! In het midden van de overloop is een unieke trap geplaatst die toegang biedt naar het prachtige dakterras van meer dan 29 m2. Er is dus meer dan genoeg ruimte voor een groot tuinmeubel. Door het panorama uitzicht kun je hier de gehele dag in de zon zitten en genieten van al het moois dat de Amsterdamse skyline te bieden heeft.
Bijzonderheden
– Bouwjaar: 1911
– C.a. 71 m2 woonoppervlak
– Een slaapkamer
– Groot balkon 7.31 m2
– Royaal dakterras van 29 m2 met geweldig uitzicht over Amsterdam
– Meetrapport NEN 2580 aanwezig
– Energielabel C
– Gezonde en actieve VVE
– Erfpacht afgekocht tot 30-11-2064 met mogelijkheid tot eeuwigdurend afkopen
– Servicekosten €118,75 incl. opstal en glasverzekering
– Elektrische warmwaterboiler
– Parkeervergunning €354,- per jaar
– Gelegen in het bruisende Oud-Zuid
– Uitzicht over Museumplein, Zuidas en Oud-Zuid
– Aanvaarding in overleg
English
UNIQUE AND MODERN TWO-ROOM APARTMENT LOCATED ON THE 4TH FLOOR (71 M2) WITH BALCONY, ROOF TERRACE (29 M2) AND PANORAMA VIEW OVER AMSTERDAM
Area:
This attractive apartment is located in Oud-Zuid. Joop Braakhekke’s restaurant La Garage is located in this street as well. Do you like to go to a good café in the evening? Then you can go to the well-known café Wildschut. The Albert Cuyp and P.C. Hooftstraat are also just a stone’s throw away. You can also easily take the tram; the stop is located on the corner of the street. The sunny 2-room apartment has a spacious living room and open kitchen, and a stylish wooden herringbone floor. The balcony (7 m2) and the large roof terrace (29 m2) which have a view over the Museumplein and the Zuidas are special. Wonderful living starts here.
Ground floor:
Central entrance with mailbox and bell system, stairwell.
Fourth floor:
Via the entrance, coat rack, meter cupboard and central heating system, you walk up the stairs and step straight into this spacious and characteristic apartment. The historic details, such as the wooden herringbone floor, the high ceiling with recessed spotlights and the graceful doors, make you immediately feel at home. At the rear of the stairs is a cupboard with the boiler. Here is also a connection for a washing machine and extra storage space. From the landing you enter the modern kitchen. This has natural light through the large windows at the rear of the house. The kitchen has a metal-finished countertop, upper cabinets with built-in spotlighting, four-burner hob, designer extractor hood, dishwasher, separate Bosh refrigerator and a cozy bar. Here you can work efficiently and enjoy pleasant late evenings! To the left of the kitchen are two open passages to the lovely living room. There is room for a large corner sofa, lounge chairs and even a separate dining area. The French doors give the living room beautiful light. They also provide access to the 7 m2 balcony that covers the entire rear of the apartment.
The bathroom is located next to the stairs at the front of the apartment. This is equipped with a walk-in shower, built-in toilet, floating bathroom furniture with mixer tap and modern black tiled floor. Next to the bathroom is the entrance to the master bedroom with airco system a view of Ruysdaelstraat. There is room for a large double bed and, your own a walk-in closet! A unique staircase has been placed in the middle of the landing that provides access to the beautiful roof terrace of more than 29 m2. So there is more than enough space for a large garden furniture. The panoramic view allows you to sit in the sun all day long and enjoy all the beauty that the Amsterdam skyline has to offer.
Details:
– Year of construction: 1911
– C.a. 71 m2 of living space
– One bedroom
– Large balcony 7.31 m2
– Spacious roof terrace of 29 m2 with great views over Amsterdam
– NEN 2580 measurement report available
– Energy label C
– Healthy and active VVE
– Leasehold bought off until 30-11-2064 with the option of perpetual redemption
– Service costs €118.75 including building and glass insurance
– Electric hot water boiler
– Parking permit €354 per year
– Located in the bustling Oud-Zuid
– View over Museumplein, Zuidas and Oud-Zuid
– Acceptance in consultation
Kenmerken
Overdracht
Prijs
€ 725.000,- k.k.
Aangeboden sinds
26-10-2023
Status
Beschikbaar
Aanvaarding
In overleg
Bouw
Soort appartement
Portiekflat
Soort bouw
Bestaande bouw
Bouwjaar
1911
Soort dak
Plat dak
Oppervlakten en inhoud
Wonen
71 m²
Perceel
253 m²
Inhoud
254 m³
Indeling
Aantal kamers
2
Aantal slaapkamers
1
Aantal badkamers
1
Badkamervoorzieningen
- Toilet
- Wastafelmeubel
- Inloopdouche
Aantal woonlagen
4
Voorzieningen
- Natuurlijke ventilatie
Energie
Energielabel
C
Isolatie
Dubbel glas
Warm water
Cv ketel, elektrische boiler eigendom
Cv-ketel
Daalderop/intergas
Kadastrale gegevens
Oppervlakte
253
Buitenruimte
Ligging
In centrum, in woonwijk
Tuin
Geen tuin
Garage
Soort garage
Geen garage
Parkeergelegenheid
Parkeergelegenheid
Betaald parkeren, parkeervergunningen












































