Houdringe 127
1025 BC AMSTERDAM
€ 350.000,- k.k.
Omschrijving
MODERN EN RIANT (75M!) APPARTEMENT MET TWEE BALKONS IN HET GROENE EN CULTURELE STADSDEEL AMSTERDAM NOORD*English below*
Omgeving:
Dit ruime appartement is gelegen in het mooie Amsterdam-Noord. Dit stadsdeel staat bekend om zijn groene omgeving en veel diversiteit in architectuur. In deze buurt vind je onder andere het NDSM-terrein, een oude scheepswerf die nu voor allerlei culturele doeleinden wordt ingezet. Er zijn vele leuke terrassen en uitgaansgelegenheden in het stadsdeel, daarnaast is er zelfs een golfbaan op fietsafstand! Centraal Station is te bereiken via de pont over het IJ, waar je natuurlijk ook kunt genieten van al het moois dat de rest van Amsterdam te bieden heeft! Door de gunstige ligging is tevens de ring A10 gemakkelijk te bereiken en is er zelfs een bushalte op de hoek. Met dit nette en moderne appartement kun je dus alle kanten op!
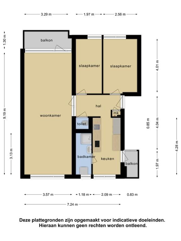
Begane grond:
Aan de buitenkant van de woning is de brievenbus en de intercom te vinden. Via de gemeenschappelijke entree bereik je op de tweede etage de eigen ingang van het appartement.
Tweede verdieping:
Direct na de entree bevindt zich de meterkast. Aan de linkerzijde van de hal is het vrijstaand en modern afgewerkt toilet te vinden. Tegenover de hal bevindt zich de grote (9m!) woonkamer. Deze ruimte wordt van beide kanten natuurlijk verlicht door grote ramen. Door de ruime indeling is er voldoende plek voor een riante hoekbank en grote eettafel. Aan de achterzijde van de woonkamer vind je het eerste ruime balkon op het zuiden van bijna 3,5 meter. De ideale plek om in de zomer met vrienden te zonnebaden! Aan de rechterzijde van de hal bevinden zich de twee slaapkamers van de woning. De eerste en grootste slaapkamer biedt genoeg ruimte voor een tweepersoonsbed en voldoende kastruimte. De tweede slaapkamer is perfecte eenpersoonskamer. Daarnaast is deze kamer ook geschikt als kantoor. Beide slaapkamers worden natuurlijk verlicht en zijn liggen net als het balkon op het zuiden.
Vanuit de linkerzijde van de hal loop je in de zeer moderne keuken. Door de lichte kasten en het grote raam aan de achterzijde heeft deze keuken een hele open uitstraling. Het is voorzien van een afzuigkap, vierpits-kookplaat, wasbak met mengkraan, ingebouwde combi-oven, vaatwasmachine en aansluiting voor de droger. Aan de rechterzijde van de keuken bevindt zich de deur naar de mooi afgewerkte badkamer. Deze is voorzien van een regendouche, badkamermeubel met mengkraan, spiegel en voldoende ruimte voor een wasmachine. Aan het eind van de keuken, bevindt zich het tweede balkon van dit appartement. Dit balkon aan de voorzijde van de woning kijkt uit op de straat en het plantsoen. Een extra bonus aan dit appartement is de grote extra berging die beneden te vinden is. Met een bergruimte van 7,5 m2 kun je met gemak jouw fietsen kwijt na een dagje borrelen op het terras!
Bijzonderheden:
– 75 m2 woonoppervlak
– 2 slaapkamers
– Bouwjaar:1967
– Meetrapport NEN 2580 aanwezig
– Energielabel C
– Verwarmingsinstallatie: Cv-ketel
– Parkeren met vergunning
– Twee balkons!
– Gezonde VVE
– Servicekosten € 193,20
– Extra grote berging aan de weg (7,5 m2)
– In het groene, rustige en culturele stadsdeel van Amsterdam
– Golfbaan op loopafstand
– Binnen no-time met de pont of met de metro Noord-zuid lijn naar centraal/centrum
– Betaald parkeren met mogelijkheid om vergunning aan te vragen
– Aanvaarding in overleg
English
MODERN AND SPACIOUS (75M!) APARTMENT WITH TWO BALCONIES IN THE GREEN AND CULTURAL CITY PART OF AMSTERDAM NORTH
Area:
This spacious apartment is located in beautiful Amsterdam North. This district is known for its green environment and great diversity in architecture. In this neighborhood you will find the NDSM site, an old shipyard that is now used for all kinds of cultural purposes. There are many nice terraces and entertainment venues in the district, and there is even a golf course within cycling distance! Central Station can be reached via the ferry across the IJ, where you can of course also enjoy all the beauty that the rest of Amsterdam has to offer! Due to its favorable location, the A10 ring road is also easily accessible and there is even a bus stop on the corner. With this neat and modern apartment you can go in any direction!
Ground floor:
The mailbox and intercom can be found on the outside of the house. You reach the private entrance of the apartment on the second floor via the communal entrance.
Second floor:
The meter cupboard is located immediately after the entrance. On the left side of the hall you will find the detached and modern toilet. Opposite the hall is the large (9m!) living room. This space is naturally illuminated from both sides by large windows. Due to the spacious layout, there is enough space for a spacious corner sofa and large dining table. At the rear of the living room you will find the first spacious south-facing balcony of almost 3.5 meters. The ideal place to sunbathe with friends in summer! The two bedrooms of the house are located on the right side of the hall. The first and largest bedroom offers enough space for a double bed and plenty of closet space. The second bedroom is perfect single room. This room is also suitable as an office. Both bedrooms are naturally lit and, like the balcony, face south.
From the left side of the hall you walk into the very modern kitchen. The light cupboards and the large window at the rear give this kitchen a very open appearance. It is equipped with an extractor hood, four-burner hob, sink with mixer tap, built-in combination oven, dishwasher and connection for the dryer. On the right side of the kitchen is the door to the beautifully finished bathroom. This is equipped with a rain shower, bathroom furniture with mixer tap, mirror and enough space for a washing machine. At the end of the kitchen is the second balcony of this apartment. This balcony at the front of the house overlooks the street and the park. An extra bonus to this apartment is the large extra storage room that can be found downstairs. With a storage space of 7.5 m2 you can easily store your bicycles after a day of drinks on the terrace!
Details:
– 75 m2 living space
– 2 bedrooms
– Year of construction: 1967
– NEN 2580 measurement report available
– Energy label C
– Heating system: central heating boiler
– Parking with permit
– Two balconies!
– Healthy VVE
– Service costs € 193.20
– Extra large storage room on the road (7.5 m2)
– In the green, quiet and cultural part of Amsterdam
– Golf course within walking distance
– Take the ferry or metro North-South line to central/city center in no time
– Paid parking with the option to apply for a permit
– Acceptance in consultation
Kenmerken
Overdracht
Prijs
€ 350.000,- k.k.
Aangeboden sinds
02-02-2024
Status
Verkocht
Aanvaarding
In overleg
Bouw
Soort appartement
Portiekflat
Soort bouw
Bestaande bouw
Bouwjaar
1967
Soort dak
Plat dak
Oppervlakten en inhoud
Wonen
75 m²
Externe bergruimte
8 m²
Perceel
2356 m²
Inhoud
248 m³
Indeling
Aantal kamers
3
Aantal slaapkamers
2
Aantal woonlagen
4
Voorzieningen
- Glasvezel kabel
- Natuurlijke ventilatie
Energie
Energielabel
C
Isolatie
Dubbel glas
Warm water
Cv ketel
Cv-ketel
Remeha avanta
Kadastrale gegevens
Oppervlakte
2356
Buitenruimte
Ligging
Aan water, aan rustige weg, in woonwijk, vrij uitzicht
Tuin
Geen tuin
Bergruimte
Schuur/berging
Inpandig
Garage
Soort garage
Geen garage
Parkeergelegenheid
Parkeergelegenheid
Betaald parkeren, parkeervergunningen












































