Chopinlaan 5
3706 BH ZEIST
€ 395.000,- k.k.
Omschrijving
FIJNE EENGEZINSWONING IN NATUURRIJK GEBIED MET NABIJGELEGEN UITVALSWEGEN IN MOOI ZEISTLet op! Bieden vanaf.
Omgeving:
Deze woning is gelegen in de zeer geliefde componistenwijk/Mooi Zeist. Deze wijk ligt in een heerlijk rustig gedeelte van Zeist, met uitvalswegen zoals de A28 op 5 minuten rijafstand. De wijk ligt in een zeer bosrijke omgeving, waar steeds meer jonge gezinnen zich vestigen. Dit komt omdat er in de directe omgeving kinderdagverblijven, basisscholen en speelveldjes aanwezig zijn. Binnen 500 meter is er een winkelcentrum met o.a. een Jumbo en een Umut supermarkt, en het Utrechtse Science Park ( uithof ) is zeer nabij gelegen.
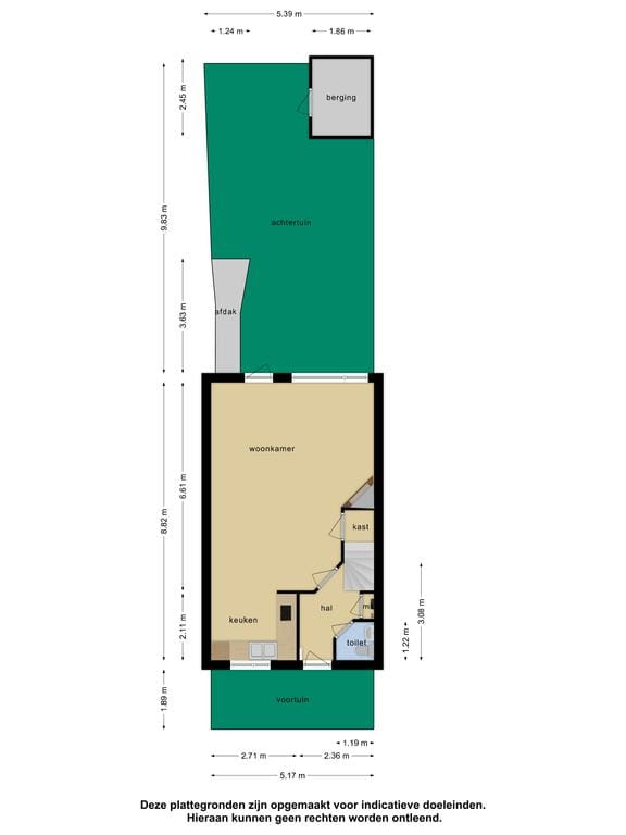
Indeling:
De woning is te betreden via de voortuin, als u de woning binnenstapt komt u terecht in de entreehal die toegang geeft tot de woonkamer, trap en een separaat toilet. De ruime woonkamer met opbergkast en haard, staat rechtstreeks in verbinding met de keuken. Vanwege de ruime indeling woonkamer heeft deze veel mogelijkheden om het naar eigen smaak te moderniseren.
Eerste verdieping:
Via de trap komt u op de overloop, direct rechts vindt u de eerste slaapkamer van de woning. Deze royale slaapkamer is voorzien van een inbouwkast en een dakkapel met uitzicht op de achtertuin. Een deur verder komt u uit op de tweede slaapkamer die aan de voorgevel grenst. Ook deze slaapkamer is ruim en bied genoeg ruimte voor een groot tweepersoonsbed en kledingkast. Door de laatste deur komt u terecht in de badkamer. De badkamer is voorzien van een tweede toilet, bad, wasbak en inloopdouche. Alle hierboven genoemde ruimtes behoeven modernisering.
Zolder verdieping:
Op de overloop is een bijkeukentje, cv-ketel en de vlieringtrap aanwezig. Net zoals op de eerste verdieping is ook hier een dakkapel aangebracht. De dakkapel grenst aan de straatzijde en is zowel aanwezig op de overloop/bijkeuken als op de derde slaapkamer. De derde en laatste slaapkamer kan voor meerdere doeleinden gebruikt worden. De ruimte levert mogelijkheden voor een werkkamer, hobbyruimte, logeerkamer enzovoort.
Vliering:
Deze woning beschikt over een vliering.
Tuin:
Deze tuin is te bereiken via de woonkamer en via de achterom. Verder is er genoeg ruimte om lekker buiten te eten en te genieten van het weer. De tuin bevat een berging met elektriciteit en genoeg plek voor uw fietsen.
Bijzonderheden:
– 107 m2 woonoppervlak
– Rijtjeswoning met een perceel van 120 m2
– 3 slaapkamers
– Bouwjaar: 1986
– Meetrapport NEN 2580 aanwezig
– Energielabel C
– Aanvaarding: in overleg
– Tuin op het westen
– Niet zelfbewoningsclausule
– Woning dient te worden gemoderniseerd
Kenmerken
Overdracht
Prijs
€ 395.000,- k.k.
Aangeboden sinds
05-05-2023
Status
Verkocht
Aanvaarding
In overleg
Bouw
Soort woonhuis
Eengezinswoning
Soort bouw
Bestaande bouw
Oppervlakten en inhoud
Wonen
107 m²
Externe bergruimte
4 m²
Perceel
120 m²
Inhoud
365 m³
Indeling
Aantal kamers
4
Aantal slaapkamers
3
Aantal badkamers
1
Badkamervoorzieningen
- Ligbad
- Toilet
- Wastafelmeubel
- Inloopdouche
Energie
Energielabel
C
Warm water
Cv ketel
Cv-ketel
Intergas
Kadastrale gegevens
Oppervlakte
120
Buitenruimte
Ligging
Aan rustige weg, in woonwijk
Tuin
Achtertuin
Achtertuin
48
Bergruimte
Schuur/berging
Aangebouwd hout
Schuur/berging voorzieningen
Voorzien van elektra
Garage
Soort garage
Geen garage
Parkeergelegenheid
Parkeergelegenheid
Openbaar parkeren

































