Zuideinde 3-B
1541 CA KOOG AAN DE ZAAN
€ 335.000,- k.k.
Omschrijving
ZO GOED ALS NIEUW 3-KAMERAPPARTEMENT AAN HET WATER MET ZONNIG TERRASOmgeving:
Rustig gelegen turn-key appartement, op een gewilde plek en direct aan het water. Deze woning (2019) is gelegen in de kindvriendelijke buurt Oud Koog, een buurt met een dorpsachtige sfeer. De woning ligt direct aan het water, je kunt zo met je boot weg varen richting de oever van de Zaan. De woning bevindt zich op loopafstand van het centrum, waar je tal van voorzieningen aantreft. De supermarkt vind je op een paar minuten lopen en eveneens de restaurants zijn op loop afstand. Kinderopvang en scholen bevinden zich tevens ook op loopafstand. Diverse sportfaciliteiten zijn goed bereikbaar. Natuurlijk zijn ook de vele voorzieningen van het bruisende Zaandam vlakbij.
De bushalte als het NS-station van Koog aan de Zaan zijn in korte tijd te bereiken. Met de auto rijd je snel naar de A8 richting Zaandam en Amsterdam of de A7 richting Purmerend en Hoorn.
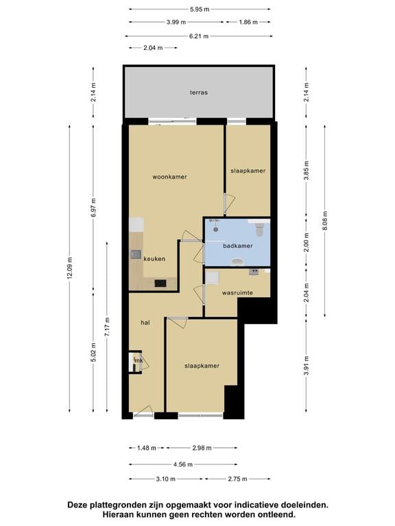
Begane grond:
Vanuit de voortuin lopen we naar de toegangsdeur. Binnen treffen we in de hal eerst de meterkast gevolgd door een ruime slaapkamer, gelegen aan de voorzijde van dit kleinschalige appartementencomplex. Naast het goede formaat van de slaapkamer heeft deze veel natuurlijk lichtinval. Na de eerste slaapkamer geeft de hal toegang tot een berging en wasruimte. Daarnaast gelegen is de badkamer. De badkamer is strak afgewerkt met neutrale kleuren en heeft een ruime inloopdouche, toilet en wasbak. Na de badkamer komen we uit in mooi afgewerkte woonkamer met pvc visgraat vloer én uitzicht over het water!
De L-vormige lichte woonkamer met open keuken is praktisch ingedeeld. De moderne open keuken is van alle gemakken voorzien: inductiekookplaat, vaatwasser, combi-oven, spoelbak met zwarte kraan en een SMEG koelkast. De keuken is afgewerkt met een lichtgrijs stenen aanrecht. Aan de woonkamer grenst tevens een tweede slaapkamer. Deze slaapkamer is ook geschikt als thuiswerkplek, logeerkamer of baby/kinderkamer.
Terras:
Dit strak afgewerkte appartement beschikt over een zonneterras van meer dan 12 m2 aan het water! Je boot is vrij aan te leggen en je kan zo richting Zaandam, Amsterdam en Alkmaar varen. Kortom heerlijk genieten komende zomer.
Parkeren:
Er is voldoende parkeerruimte rondom de woning.
Bijzonderheden:
– 64 m2 woonoppervlak
– Bouwjaar: 2019
– Gelegen op begane grond van een kleinschalig appartementencomplex
– Uitstekend onderhouden
– Direct aan het water gelegen, in een rustige omgeving
– Ruime woonkamer met moderne open keuken
– 2 slaapkamers
– Meetrapport NEN 2580 aanwezig
– Onderhoudsarme woning
– Ruim zonneterras aan het water
– (Fietsen) berging
– Energielabel A
– Volledig eigendom
– Aanvaarding: in overleg
Kenmerken
Overdracht
Prijs
€ 335.000,- k.k.
Aangeboden sinds
10-04-2023
Status
Verkocht
Aanvaarding
In overleg
Bouw
Soort appartement
Benedenwoning
Soort bouw
Bestaande bouw
Bouwjaar
2019
Oppervlakten en inhoud
Wonen
64 m²
Externe bergruimte
5 m²
Inhoud
214 m³
Indeling
Aantal kamers
3
Aantal slaapkamers
2
Aantal badkamers
1
Badkamervoorzieningen
- Toilet
- Wastafelmeubel
- Inloopdouche
Aantal woonlagen
2
Voorzieningen
- Mechanische ventilatie
- Tv kabel
- Glasvezel kabel
- Natuurlijke ventilatie
Energie
Energielabel
A
Isolatie
Dubbel glas, volledig geisoleerd, hr glas
Warm water
Cv ketel
Cv-ketel
Intergas
Buitenruimte
Ligging
Aan water, aan rustige weg, in woonwijk, aan vaarwater
Tuin
Zonneterras
Ligging tuin
Zuid
Bergruimte
Schuur/berging
Box
Garage
Soort garage
Geen garage






























