Lievenshof 20
1816 KH ALKMAAR
€ 245.500,- k.k.
Omschrijving
ROYAAL APPARTEMENT NABIJ CENTRUM ALKMAAR MET 2 BALKONS EN EXTERNE BERGING*English below*
Omgeving:
Dit knusse appartement is gelegen in de wijk De Hoef. Het heeft de perfecte ligging. In deze kindvriendelijke buurt zijn basisscholen en middelbare scholen dichtbij, maar ben je ook snel in de binnenstad van het mooie Alkmaar. Met natuurpark Egmonderhout om de hoek kun je hier genieten van zowel de rustige groene buurt als het bruisende stadsleven. De uitvalswegen zijn vanaf dit appartement gemakkelijk bereikbaar, waardoor je snel via de Ring Alkmaar in Haarlem en omliggende kustplaatsen bent. Dit appartement biedt tevens ook een ruime berging van 6 m2. Hier kun je jouw fietsen plaatsen na een bezoekje aan Alkmaar centrum. Deze woning beschikt ook nog eens over twee balkons op het Noordoosten en Zuidwesten. Je kunt dus de gehele dag van het zonnetje kunt genieten!
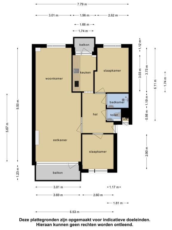
Indeling:
Je betreedt de woning middels een afgesloten entree met bel/intercom systeem en een trappenhuis. Het appartement is gelegen op de bovenste verdieping; hier heb je het zonnigste en beste uitzicht! De hal is centraal gelegen in dit appartement en biedt toegang tot alle ruimtes. Aan de rechterzijde zijn het aparte toilet en badkamer. Deze zijn van alle gemakken voorzien. Het is tevens mogelijk deze naar eigen smaak op te knappen en zelfs een grote ruimte van te maken. Aan de linker- en rechterkant biedt de hal toegang tot de slaapkamers.
De grootste slaapkamer is gelegen aan de achterzijde van het appartement en biedt voldoende ruimte voor een tweepersoonsbed en een grote kledingkast. De tweede slaapkamer aan de voorzijde van het appartement is geschikt als kinderkamer, kantoor of walk-incloset. De overzijde van de hal leidt naar de ruime woon- en eetkamer. Deze is in zeer nette staat, dus je kunt jouw meubels direct verhuizen. Door het balkon enerzijds en het grote raam aan de andere zijde van deze ruimte, heeft deze royaal verlicht. De zijkant van de woonkamer grenst aan de keuken. Deze is voorzien van een afzuigkap, inductiekookplaat, beneden- en bovenkasten, wasbak met mengkraan en aansluiting voor de koelkast en wasmachine. Je kunt er tevens voor kiezen om de wand te verwijderen en de keuken te betrekken bij de woonkamer. Zo creëer je een enorme woon- leefruimte met toegang tot beide balkons!
Bijzonderheden:
– Woonoppervlakte: c.a. 70 m2
– Bouwjaar: 1964
– Energielabel: E
– Twee slaapkamers
– Nabij Alkmaar centrum
– Meetrapport NEN 2580 aanwezig
– Externe berging: 6 m2
– Volledig eigendom
– Servicekosten € 144,88
– Op loopafstand van het winkelcentrum De Hoef en enkele minuten fietsen van de binnenstad en het station
– Aanvaarding in overleg
SPACIOUS APARTMENT NEAR THE CENTER OF ALKMAAR WITH 2 BALCONIES AND EXTERNAL STORAGE
Area:
This cozy apartment is located in the De Hoef district. It has the perfect location. In this child-friendly neighborhood, primary and secondary schools are close by, but you can also quickly reach the city center of beautiful Alkmaar. With Egmonderhout nature park around the corner, you can enjoy both the quiet green neighborhood and the vibrant city life. The arterial roads are easily accessible from this apartment, so you can quickly reach Haarlem and surrounding coastal towns via the Alkmaar Ring. This apartment also offers a spacious storage room of 6 m2. You can park your bicycles here after a visit to the center of Alkmaar. This house also has two balconies on the Northeast and Southwest. So you can enjoy the sun all day long!
You enter the house through a closed entrance with bell/intercom system and a stairwell. The apartment is located on the top floor; here you have the sunniest and best view! The hall is centrally located in this apartment and provides access to all areas. On the right are the separate toilet and bathroom. These are fully equipped. It is also possible to renovate it to your own taste and even turn it into one large space. On the left and right side the hall provides access to the bedrooms. The largest bedroom is located at the rear of the apartment and offers enough space for a double bed and a large wardrobe. The second bedroom at the front of the apartment is suitable as a children’s room, office or walk-in closet.
The other side of the hall leads to the spacious living and dining room. This is in very good condition, so you can move your furniture immediately. The balcony on one side and the large window on the other side of this room provide ample lighting. The side of the living room is adjacent to the kitchen. This is equipped with an extractor hood, induction hob, lower and upper cabinets, sink with mixer tap and connection for the refrigerator and washing machine. You can also choose to remove the wall and integrate the kitchen into the living room. This way you create a huge living space with access to both balconies!
Details:
– Living area: app. 70 m2
– Year of construction: 1964
– Energy label: E
– Two bedrooms
– Near Alkmaar center
– NEN 2580 measurement report available
– External storage room: 6 m2
– Service charge: € 144,88
– Acceptance in consultation
Kenmerken
Overdracht
Prijs
€ 245.500,- k.k.
Aangeboden sinds
17-04-2024
Status
Verkocht
Aanvaarding
In overleg
Bouw
Soort appartement
Portiekflat
Soort bouw
Bestaande bouw
Bouwjaar
1963
Soort dak
Plat dak
Oppervlakten en inhoud
Wonen
70 m²
Externe bergruimte
6 m²
Perceel
1283 m²
Inhoud
230 m³
Indeling
Aantal kamers
3
Aantal slaapkamers
2
Aantal badkamers
1
Badkamervoorzieningen
- Douche
- Wastafel
Aantal woonlagen
3
Voorzieningen
- Tv kabel
- Natuurlijke ventilatie
Energie
Energielabel
E
Isolatie
Dubbel glas
Warm water
Cv ketel
Cv-ketel
Intergas hre-a
Kadastrale gegevens
Oppervlakte
1283
Buitenruimte
Ligging
In woonwijk
Tuin
Geen tuin
Bergruimte
Schuur/berging
Inpandig
Schuur/berging voorzieningen
Voorzien van elektra
Garage
Soort garage
Geen garage
Parkeergelegenheid
Parkeergelegenheid
Openbaar parkeren



































