Kerkpad 3
1645 VN URSEM
€ 395.000,- k.k.
Omschrijving
UNIEK WONEN! ENERGIEZUINIGE EN KARAKTERISTIEKE PASTORIE UIT 1840 MET ENSUITE SLAAP/BADKAMER*English below*
Locatie:
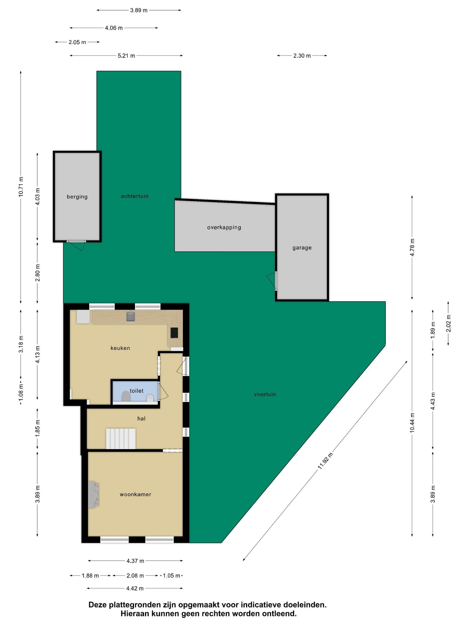
Te midden van het pittoreske dorp Ursem ligt deze parel. Het betreft een prachtige pastorie met een grote tuin, garage, overkapping en berging (19 m2). Daarnaast zijn er op dit perceel privé parkeerplekken gerealiseerd. Hier woon je in een rustige en natuurlijke omgeving, maar het stadsleven is praktisch om de hoek! Binnen een kwartier rijden bevind je je namelijk in het centrum van Alkmaar en Hoorn. In Ursem vind je op 5 minuten loopafstand een supermarkt. Daarnaast zijn er basisscholen, kinderopvang en verschillende sportvoorzieningen. De woning is gasvrij gemaakt en op het dak van de garage liggen maar liefst 12 zonnepanelen, waardoor deze woning uit 1840 toch over een zeer gunstig energielabel B beschikt! Gelukkig zijn er vele originele elementen behouden zoals de waterput, beverstaartdakpannen, gekrulde dragers van de dakrand, het hijs-oog en de rozetten aan de buitengevel.
Begane grond:
De toegangsdeur tot de woning bevindt zich aan de zijkant van het pand. Bij binnenkomst komt de luxe uitstraling door het hoge plafond en de natuurhouten trap je direct tegemoet. De gehele woning is dit jaar nog gestuukt en op de benedenetage is een nieuwe vloer gelegd. Vanaf de voordeur loop je rechtdoor via de toog de grote keuken in. De grote raampartijen met uitzicht over de achtertuin geven deze keuken veel natuurlijk licht. De stijlvolle donkerhouten keuken beschikt over een moderne afzuigkap, wastafel met uittrekbare spoelkraan, oven, inbouwvaatwasser en airconditioning. Door het grote oppervlak is er voldoende opbergruimte. Naast de keuken bevindt zich het vrijstaande toilet. Deze ruimte is eveneens zeer modern ingericht en beschikt zelfs naast het toilet over een urinoir. De woonkamer ligt aan de voorzijde van de pastorie. Deze heeft plafondhoge raampartijen met natuurstenen vensterbanken en ook hier is een airconditioning geplaatst.
Eerste verdieping:
De trap naar de eerste etage staat in het midden van de pastorie. De houten treden en de sierlijke spijlen van de leuning maken het tot een echte eyecatcher. Op de overloop is de aansluiting voor een wasmachine en droger. Hiernaast is de toegangsdeur naar de slaapkamer aan de voorzijde van de woning. Deze slaapkamer heeft een dakkapel, is zeer royaal en bied ruimte voor een kingsize bed. Natuurlijk kun je deze ruimte ook gebruiken als kantoor/werkkamer. De kers op de taart van deze pastorie is echter de slaapkamer die is gelegen aan de achterzijde. Deze ensuite slaapkamer heeft een moderne ingebouwde douchecabine. De karakteristieke elementen van de historierijke pastorie worden hierdoor op sublieme wijze gecombineerd met een eigentijdse stijl. Hier start je de dag fris op en kom je aan het eind van de dag weer volledig tot rust.
Check de EXCLUSIEVE EIGEN SITE VAN DE WONING (verkoopmakelaarbas.nl/object/kerkpad-3/) voor meer informatie over de woning en de omgeving via de site van Verkoopmakelaar Bas
Bijzonderheden
– Woonoppervlakte 94 m2
– Bouwjaar 1840
– Perceel 215 m2
– Twee slaapkamers
– Energielabel B
– NEN 2580 meetrapport aanwezig
– Volledig gasvrij
– 12 zonnepanelen leveren 435 Wp per stuk
– 3 Privé parkeerplaatsen
– Zijkant van de woning ( entree ) c.a. 60m2 betreft huurgrond € 60 p.j.
English
UNIQUE LIVING! ENERGY EFFICIENT AND CHARACTERISTIC PASTORY FROM 1840 WITH ENSUITE BEDROOM/BATHROOM
Area:
This pearl is located in the middle of the picturesque village of Ursem. It is a beautiful parsonage with a large garden, garage, canopy and storage room (19 m2). In addition, private parking spaces have been created on this plot. Here you live in a quiet and natural environment, but city life is practically around the corner! Within a fifteen-minute drive you will be in the center of Alkmaar and Hoorn. In Ursem you will find a supermarket within a 5-minute walk. There are also primary schools, childcare and various sports facilities. The house has been made gas-free and there are no fewer than 12 solar panels on the roof of the garage, which means that this house from 1840 still has a very favorable energy label B! Fortunately, many original elements have been retained, such as the well, beavertail roof tiles, curled supports of the eaves, the lifting eye and the rosettes on the outer facade.
Ground floor:
The entrance door to the house is located on the side of the building. Upon entering, you are immediately greeted by the luxurious appearance of the high ceiling and the natural wooden stairs. The entire house was plastered this year and a new floor was laid on the ground floor. From the front door you walk straight through the bar into the large kitchen. The large windows overlooking the backyard give this kitchen plenty of natural light. The stylish dark wood kitchen has a modern extractor hood, sink with pull-out sink tap, oven, built-in dishwasher and air conditioning. The large surface area provides plenty of storage space. The detached toilet is located next to the kitchen. This room is also very modern and even has a urinal next to the toilet. The living room is located at the front of the parsonage. This has ceiling-high windows with natural stone window sills and air conditioning has also been installed here.
First floor:
The stairs to the first floor are in the middle of the parsonage. The wooden steps and the graceful bars of the handrail make it a real eye-catcher. On the landing there is the connection for a washing machine and dryer. Next to this is the access door to the bedroom at the front of the house. This bedroom has a dormer window, is very spacious and offers space for a king-size bed. Of course you can also use this space as an office/study. The icing on the cake of this parsonage, however, is the bedroom located at the rear. This ensuite bedroom has a modern built-in shower cubicle. The characteristic elements of the historic parsonage are sublimely combined with a contemporary style. Here you can start the day fresh and completely relax at the end of the day.
Check the EXCLUSIVE OWN SITE OF THE PROPERTY (verkoopmakelaarbas.nl/en/object/kerkpad-3-3/) for more information about the house and the surrounding area via the website of Sales Broker Bas
Details:
– Living area 94 m2
– Year of construction 1840
– Two bedrooms
– Energy label B
– Measurement report NEN2580 available
– Completely gas-free
– 12 solar panels with a 435 Wp per panel
– Plot 215 m2
– 3 Private parking spaces
– Side of the house (entrance) concerns rental land c.a. 60 m2 costs €60 per year
Kenmerken
Overdracht
Prijs
€ 395.000,- k.k.
Aangeboden sinds
22-11-2024
Status
Ingetrokken
Aanvaarding
In overleg
Bouw
Soort woonhuis
Eengezinswoning
Soort bouw
Bestaande bouw
Bouwjaar
1840
Soort dak
Zadeldak
Oppervlakten en inhoud
Wonen
94 m²
Externe bergruimte
19 m²
Perceel
215 m²
Inhoud
337 m³
Indeling
Aantal kamers
3
Aantal slaapkamers
2
Aantal badkamers
1
Badkamervoorzieningen
- Inloopdouche
Voorzieningen
- Tv kabel
- Airconditioning
- Zonnepanelen
Energie
Energielabel
B
Isolatie
Gedeeltelijk dubbel glas, hr glas
Warm water
Elektrische boiler eigendom
Kadastrale gegevens
Oppervlakte
215
Buitenruimte
Ligging
Aan water, aan park, in woonwijk, vrij uitzicht
Tuin
Achtertuin, voortuin, zijtuin
Bergruimte
Schuur/berging
Aangebouwd hout
Schuur/berging voorzieningen
Voorzien van elektra
Garage
Soort garage
Geen garage
Parkeergelegenheid
Parkeergelegenheid
Openbaar parkeren, op eigen terrein








































