Westerstraat 72-3
1015 ML AMSTERDAM
€ 440.000,- k.k.
Description
PRACHTIG GERENOVEERD EN INSTAPKLAAR APPARTEMENT IN HET HART VAN AMSTERDAM*English below*
Locatie:
Gelegen in de bruisende en geliefde Jordaan, bevindt dit charmante appartement zich aan de pittoreske Westerstraat, midden in het centrum van Amsterdam. Omgeven door gezellige cafés, uitstekende restaurants, unieke boetiekjes en levendige markten zoals de biologische Noordermarkt. Deze buurt is een cultureel knooppunt met diverse musea en parken op loopafstand, waaronder het Anne Frank Huis en het Westerpark. Het openbaar vervoer is uitstekend geregeld, met meerdere tram- en bushaltes om de hoek, waardoor de rest van de stad gemakkelijk bereikbaar is. De woning is ook goed bereikbaar met de auto en fietsen kan natuurlijk sowieso. Kortom, de perfecte locatie voor iedereen die van alles wil genieten wat Amsterdam te bieden heeft.
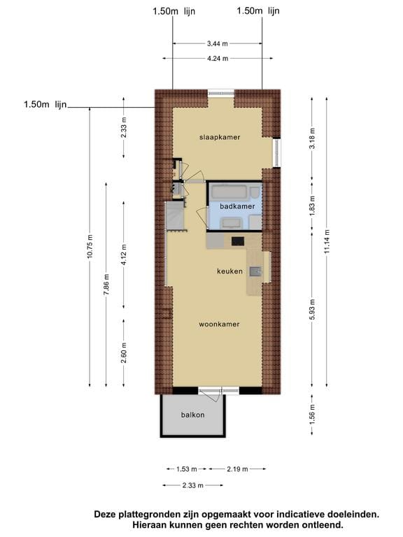
Indeling:
Bij binnenkomst in de woning word je verwelkomd door een kleine hal voor het opbergen van jassen en schoenen. Een trap leidt je naar de hoofdverdieping van het appartement. De lichte en ruime woonkamer, met grote ramen, laat veel licht binnen en creëert direct een warme en uitnodigende sfeer. Aangrenzend aan de woonkamer bevindt zich een moderne keuken, gerenoveerd in maart 2022, uitgerust met alle gemakken, waaronder een inductiekookplaat, een
oven met ingebouwde magnetron, een vaatwasser en een koel-vriescombinatie. De badkamer, volledig gerenoveerd in juni 2022, beschikt over moderne voorzieningen zoals vloerverwarming, een regendouche, een bad, een brede wastafel, een spiegel met geïntegreerde verlichting en een wasmachine. Het balkon, toegankelijk via de woonkamer en gelegen aan de
achterzijde van het gebouw, wordt van 13:00 tot 19:00 uur in de zomermaanden overspoeld met zonlicht.
Een weelderige esdoornboom zorgt voor veel privacy. De woning beschikt over een ruime slaapkamer met veel natuurlijk licht. De bruto vloeroppervlakte van dit appartement is 61 m², terwijl de officiële woonoppervlakte 41 m² bedraagt. Dit verschil is te danken aan het architectonische ontwerp van het appartement. De schuine wanden en slim ontworpen ruimtes creëren een open en luchtig gevoel, waardoor de woonruimte veel groter lijkt dan de officiële meting. Het hele appartement is uitgerust met vloerverwarming, wat zorgt voor warme voeten tijdens de winter. Een bouwtechnische inspectie uitgevoerd in 2021 wees op tekenen van een vernieuwde fundering.
Details:
– Woonoppervlakte: 43 m²
– 1 slaapkamer
– Energielabel: C
– Badkamer en keuken gerenoveerd in 2022; tapijt op de trap vervangen in 2023
– Vloerverwarming
– Professionele VvE
– NEN 2580 meetrapport beschikbaar
– Gelegen in een historisch en levendig deel van Amsterdam
– Bouwjaar: 1889
– Instapklaar
Ben je net zo enthousiast over deze woning als wij? Maak dan snel een afspraak voor een
bezichtiging!
English
BEAUTIFULLY RENOVATED AND MOVE-IN READY TOP FLOOR APARTMENT IN HEART IF AMSTERDAM
Location:
Nestled in the vibrant and beloved Jordaan district, this delightful apartment is located on the picturesque Westerstraat, right in the center of Amsterdam. Surrounded by cozy cafes, excellent restaurants, unique boutiques, and lively markets like the organic Noordermarkt. This neighborhood is a cultural hub with various museums and parks within walking distance, including the Anne Frank House and Westerpark. Public transport is exceptionally convenient, with multiple tram and bus stops just around the corner, making the rest of the city easily accessible. The property is also easily reachable by car and biking is always an option too. In short, it’s the perfect location for those who want to enjoy everything Amsterdam has to offer.
Layout:
Upon entering the home, you are welcomed by a small entryway to store coats and shoes. A set of stairs leads you to the main floor of the apartment. The bright and spacious living area, with large windows, lets in plenty of light and immediately creates a warm and inviting atmosphere. Adjacent to the living room is a modern kitchen, renovated in March 2022, equipped with all conveniences, including a induction hob, an oven with built-in microwave, a dishwasher, and a
fridge-freezer combination.
The bathroom, completely renovated in June 2022, features modern amenities such as floor heating, a rain shower, a bathtub, a wide sink, a mirror with integrated lighting, and a washing machine. The balcony, accessible through the living room and facing the back of the building, is bathed in sunlight from 1 PM to 7 PM during the summer months. A lush maple tree provides ample privacy. The home boasts one spacious bedroom with plenty of natural light. The gross floor area of this apartment is 61 m², while the living area officially measures 41 m². This discrepancy is due to the architectural design of the apartment. The slanted walls and cleverly designed spaces create an open and airy feel, making the living space appear much larger than the official measurement. The entire apartment is equipped with floor heating, ensuring cozy feet during the winter. A building technical inspection done in 2021 indicated signs of a renewed foundation.
Details:
– Living space: 43 m²
– 1 bedroom
– Energy label: C
– Renovated bathroom and kitchen in 2022; carpet on stairs replaced in 2023
– Floor heating
– Professional VvE (Owners’ Association)
– NEN 2580 measurement report available
– Located in a historic and lively part of Amsterdam
– Year of construction: 1889
– Ready to move in
Are you as excited about this home as we are? Then quickly schedule a viewing appointment!
Features
Handover
Price
€ 440.000,- k.k.
Offered since
11-07-2024
Status
Ingetrokken
Acceptance
In overleg
Build
Type of apartment
Bovenwoning
Type of construction
Bestaande bouw
Year of construction
1889
Type of roof
Zadeldak
Surfaces and content
Wonen
41 m²
Perceel
76 m²
Contents
134 m³
Layout
Number of rooms
2
Number of bedrooms
1
Number of bathrooms
1
Badkamervoorzieningen
- Ligbad
- Toilet
- Wastafel
- Wastafelmeubel
- Wasmachineaansluiting
Number of floors
3
Voorzieningen
- Tv kabel
- Natuurlijke ventilatie
Energy
Energy label
C
Insulation
Dakisolatie, muurisolatie, dubbel glas
Hot water
Cv ketel
Boiler
Intergas kompakt hre
Kadastrale gegevens
Oppervlakte
76
Outdoor space
Location
Aan drukke weg, in centrum
Garden
Geen tuin
Garage
Type of garage
Geen garage
Parking
Parking
Betaald parkeren, parkeervergunningen


























